Das Haus

To zespól 4 apartamentów w zabudowie szeregowej. Każdy apartament o powierzchni uzytkowej ok 140 m2 jest niezależnym segmentem z własnym wejściem, własnym ogrodem oraz dwoma miejscami postojowymi w garażu podziemnym. To indywidualny projekt, naturalne materiały, kamienne elewacje, logiczna przestrzeń, dużo słońca!

Przemyślane rozwiązania funkcjonalne:

Odpowiadające współczesnemu życiu rozwiązania polegające na strefowaniu przestrzeni na otwartąi zamkniętą.

Strefa otwarta – wspólna, przeznaczona dla domowników oraz gości:
(poziom 0,00 - hall wejściowy, kuchnia, pokój dzienny, WC )

Strefa zamknięta – zaspakaja potrzebę prywatności domowników i ich indywidualnych potrzeb:
(poziom +3.00 - dwa pokoje, łazienka, garderoba, pomieszczenie techniczno gospodarcze; 
(poziom +6.00 - pokój, łazienka, taras )

Naturalne światło

W każdym pomieszczeniu, na każdym poziomie m. in. dzięki zdecydowanym i wyrazistym lukarnom w stromym dachu oraz zastosowaniu trwałej i estetycznej aluminiowej stolarki.

Ogród + przedogródek

Ogród ok. 150 m2 terenu od strony salonu. Ogród daje komfort psychiczny, pokazuje zmienność pó

Tarasy  z drewnianą podłogą ,balustrady stalowe ocynkowane

Taras

To ok. 14 m2 dodatkowej powierzchni (poziom +6.00) z drewnianą podłogą. Miejsce  dostępne i widoczne tylko z Twojego apartamentu

Garaż dla 2 samochodów

Wspólny garaż (poziom -2,46) z przypisanymi miejscami do wyłącznej dyspozycji. Bezpieczny i wygodny.

Standard

Technologia wykonania i standard wykończeniowy (stan deweloperski)

- Szkielet żelbetowy z wypełnieniem ścian pustakami ceramicznymi Thermopor P+W Leier
- Ściany wewnętrzne działowe murowane z pustaków Xella- Silka typu E8 klasy 15. Stropy żelbetowe z izolacją akustyczną Rockwool/Stroprock, ściany zewnętrzne ocieplane styropianem Thermoorganica Platinum Fasada oraz wełna mineralną Fasrock-L ( wg projektu)
- Dwuspadowy dach wykonany blachy aluminiowej na rąbek stojący z systemem izolacji Knauff Insulation Unit 035.
- Stropodachy odwrócone kryte membraną dachową, ocieplane styropianem ekstrudowanym XPS.
- Stolarka aluminiowa profile ciepłe, szyby w zależności od umiejscowienia : VSG 44,4/16ar/ESG 6T K=1.1tzn.: szyba antywłamaniowa klasy P4 / ramka dystansowa 16 mm przestrzeń wypełniona gazem argonem / szyb 6 mm / przenikalność cieplna k=1,1 Float 6ESG/16 ar/VSG 44,2T aku tzn.: szyba 6 mm hartowana / ramka dystansowa 16 mm / przestrzeń wypełniona argonem / szyba antywłamaniowa klasy P2 z folią akustyczną RW 32 db Float 4/16ar/4T tzn.: szyba podstawowa 6 mm / ramka 16 mm /szyba 6mm Tarasy z drewnianą podłogą ,balustrady stalowe ocynkowane

Instalacje :
- Instalacja gazowa wraz z piecem grzewczym „Beretta” typ „Boiler Green „IS 25 z zasobnikiem Inox (60 l), grzejniki stalowe zaworowe profil V oraz konwektorowe zaworowe KKV KERMI i armaturą, grzejniki łazienkowe B-20R KERMI
- Instalacja elektryczna oświetlenia (instalacja gniazd wtyczkowych ogólnego przeznaczenia, instalacja telefoniczna, instalacja okablowania strukturalnego, inst. antenowa, linie kablowe do szafek pomiarowych i potrzeb administracyjnych, rozdzielnice mieszkaniowe i dla potrzeb administracyjnych, instalacja odgromowa, instalacja przeciwprzepięciowa) Parametry: moc przyłączeniowa do każdego lokalu 9 kW-3 fazowo, moc przyłączeniowa dla potrzeb administracyjnych dla każdego budynku 3 kW.
- Instalacja wodno-kanalizacyjna wraz z podejściami pod urządzenia, odwodnienie garażu studzienka z pompą.

Wykończenie wnętrz:

Podłogi - wykonane są wszystkie warstwy izolacyjne i jastrychy pod panele lub terakotę, Ściany - wykonane są tynki wewnętrzne gipsowe, w łazienkach tynki cementowe, ściany przygotowane pod malowanie końcowe
Stolarka – wykonana jest stolarka okienna wraz z parapetami zewnętrznymi.
Drzwi wejściowe zewnętrzne pełne aluminium z panelem drewnopodobnym w kolorze wiśni, drzwi wejściowe wewnętrzne (przedsionek) aluminium z wypełnieniem szklanym mat Drzwi wewnętrzne - białe gładkie
Konstrukcja schodów - samonośne, drewniane (świerkowe) surowe wg indywidualnego projektu przygotowane do warstw wykończeniowych wg indw. wykończenia
Garaż - posadzka przemysłowa, ściany nietynkowane
Bramy garażowe panelowe gładkie z napędem elektrycznymi i fotokomórkami, kolor srebrny
Standard prac wykończeniowych w części wspólnej budynku i terenie wokół niego, stanowiącym część wspólną nieruchomości
Budynek i teren są wykończone w całości na zewnątrz (chodniki, murki zjazdy), miejsce na odpady stałe
Oprawy oświetleniowe wraz z czujnikami ruchu - garaż podziemny, podjazdy, strefa wejściowa, zieleń.

Twoje miejsce


Wspaniała przestrzeń, otwarty krajobraz, spokojna ulica, zjawiskowe kolorowe pola,  widok na   Kopiec Piłsudskiego, wysokie drzewa,  przydrożna kapliczka…
Jadąc tu, zostawia się za sobą cały chaos urbanistyczny i zgiełk, potem mija się romantyczne wierzby i potok, żeby ujrzeć miejsce harmonijne, radosne, dające poczucie zadowolenia. Obecnie realizowany w pobliżu  przystanek stworzy warunki  doskonałego połączenia komunikacyjnego cichym szynobusem: do Rynku Głównego  zaledwie w 15 min, do portu lotniczego im. Jana Pawła II w Balicach 5 min. Znajduje się tu kilka sklepów spożywczych, dwie szkoły podstawowe: państwowa oraz prywatna, przedszkole a także kościół rzymskokatolicki pw. Matki Boskiej Częstochowskiej.

To jedyne takie miejsce w Krakowie pod względem wygody komunikacyjnej i jednocześnie uroku i dobrej atmosfery. Inwestycja położona jest przy ul. Powstania Styczniowego / Kraków Krowodrza - Dzielnica VII Zwierzyniec.

Pobierz poglądową mapę dojazdu

Apartamenty

Wybierz swój apartament:


Apartament 2J

Na trzech poziomach użytkowych znajdują się:
z 4 pokoje, 2 łazienki, WC, kuchnia, garderoba, pralnia, taras, ogród, przedogródek.
Do apartamentu przynależą dwa miejsca postojowe w garażu podziemnym.
Zestawienie powierzchni:
145,60 m2 - powierzchnia użytkowa mieszkania
27,62 m2 - powierzchnia tarasu
58,22 m2 - garaż na 2 stanowiska + pow. komunikacyjna
176,16 m2 - ogródek
31,35 m2 - przedogródek

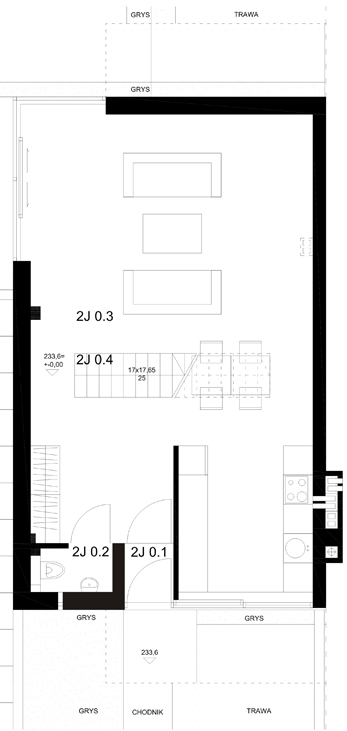
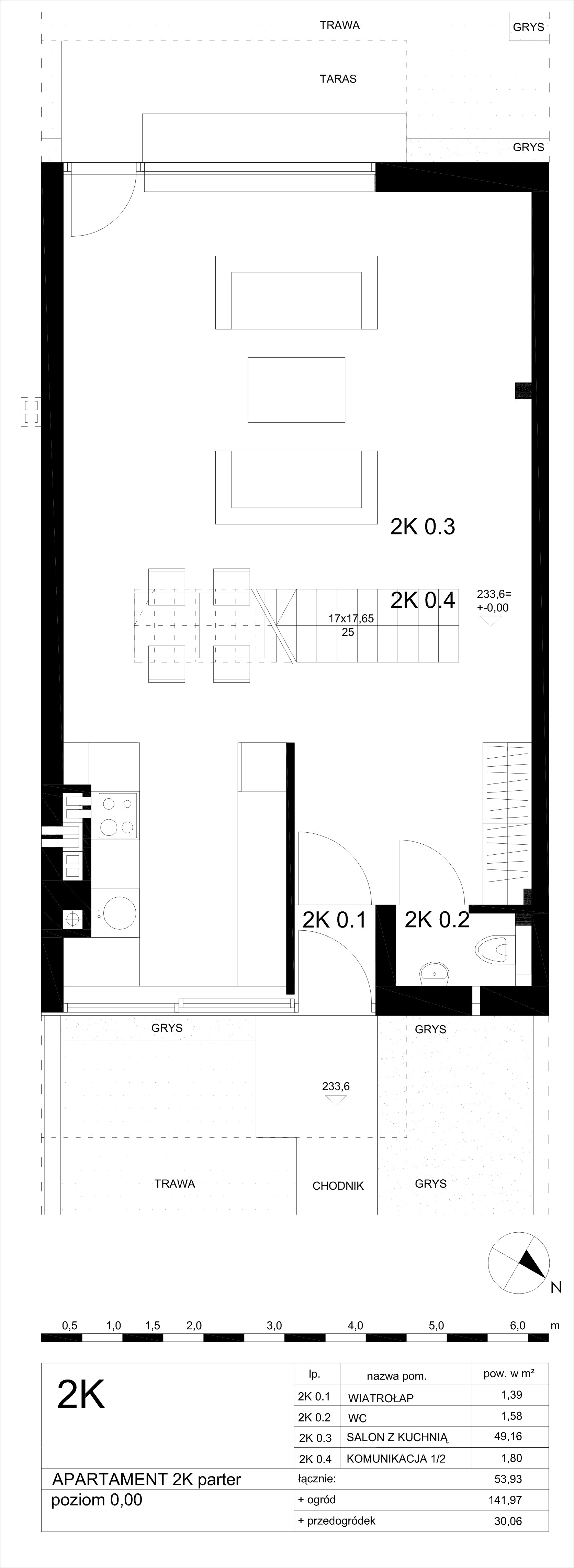
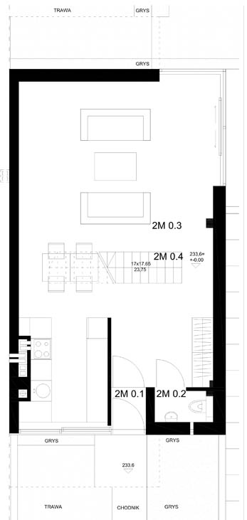
Parter

2J 0.1 - Przedsionek - 1.39 m2
2J 0.2 - WC - 1.58 m2
2J 0.3 - Salon z kuchnią - 50.9 m2
2J 0.4 - Komunikacja 1/2 - 1.8 m2

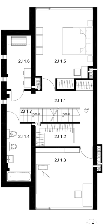
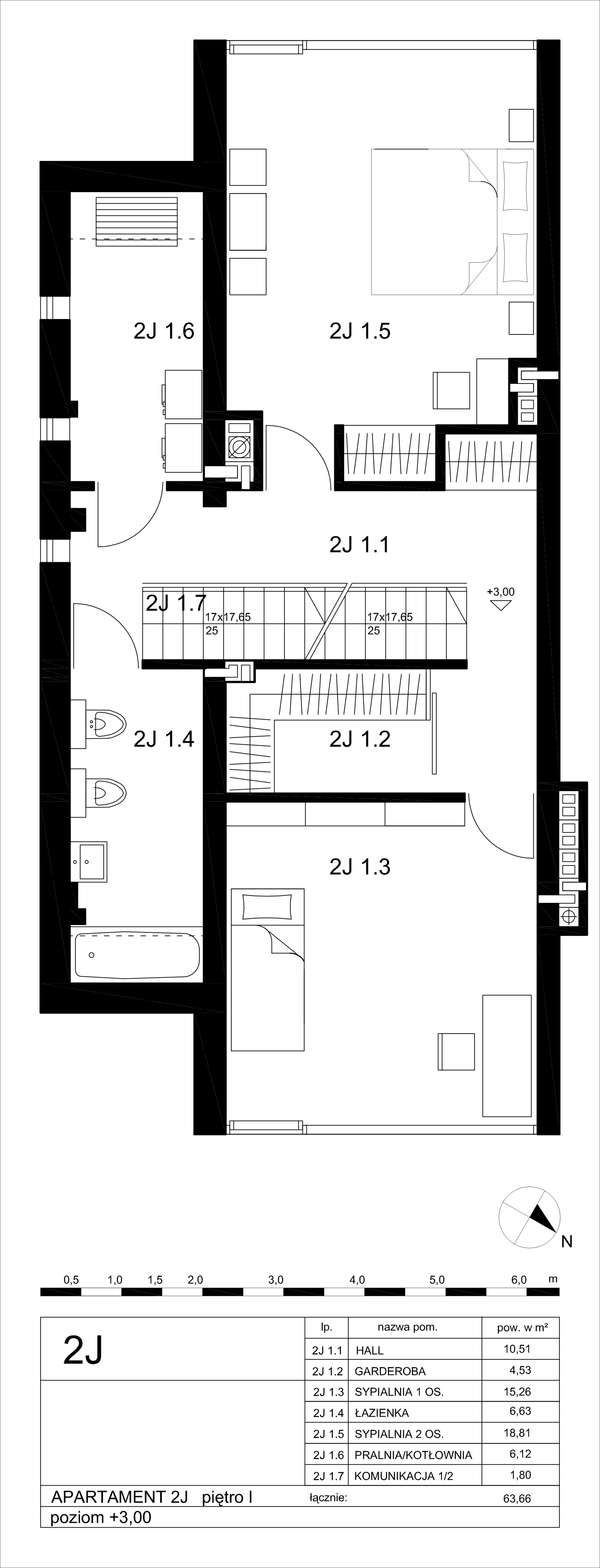
I Piętro
2J 1.1 - Hall - 10.51 m2
2J 1.2 - Garderoba - 4.53
2J 1.3 - Sypialnia 1 Os. - 15.26 m2
2J 1.4 - Łazienka - 6.63m2
2J 1.5 - Sypialnia 2 Os. 18.81 m2
2J 1.6 Pralnia/kotłownia - 6.12 m2
2J 1.7 - Komunikacja 1/2 - 1.8 m2

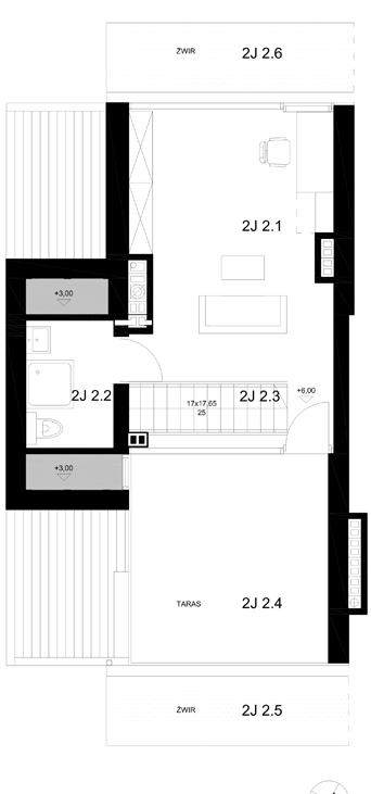
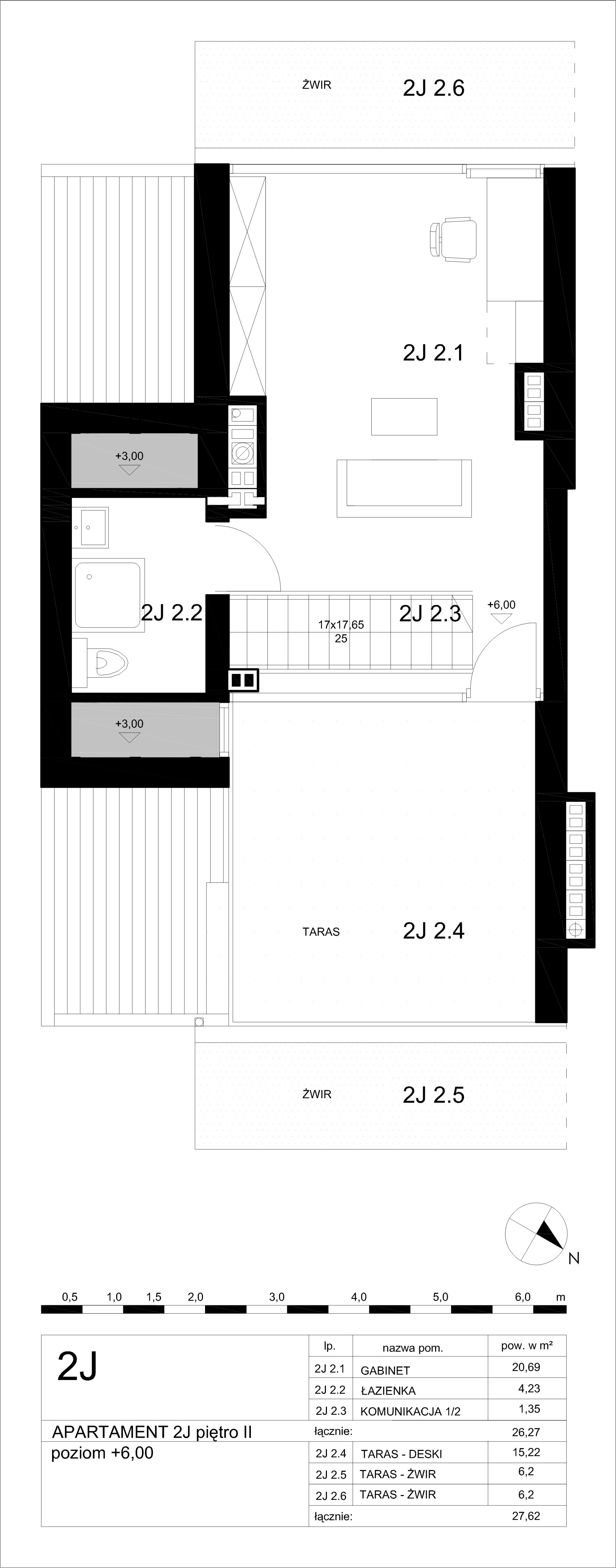
II Piętro
2J 2.1 - Gabinet - 20.96 m2
2J 2.2 - Łazienka - 4,23 m2
2J 2.3 - Komunikacja 1/2 - 1,35 m2
2J 2.4 - Taras - deski- 15,22 m2
2J 2.5 - Taras - żwir. 6.2 m2
2J 2.6 - Taras - żwir- 6.2 m2

Garaż podziemny
2J -1.1 - Pow. postojowa- 30.5 m2
2J -1.2 - Komunikacja - 27.72 m2

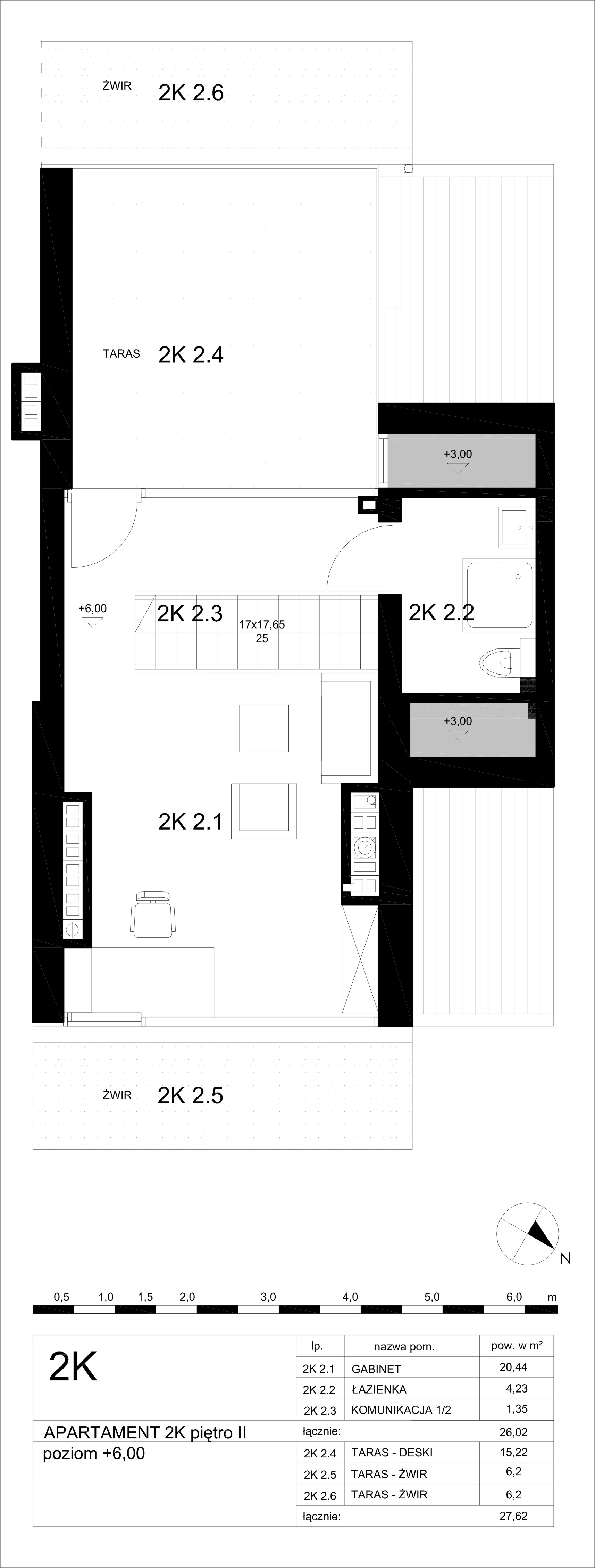
Apartament 2K

Na trzech poziomach użytkowych znajdują się:

4 pokoje, 2 łazienki, WC, kuchnia, garderoba, pralnia, taras, ogród, przedogródek.
Do apartamentu przynależą dwa miejsca postojowe w garażu podziemnym.
Zestawienie powierzchni:
143,38 m2 - powierzchnia użytkowa mieszkania
27,62 m2 - powierzchnia tarasu
58,22 m2 - garaż na 2 stanowiska
+ pow. komunikacyjna
141,97 m2 - ogródek
30,60 m2 - przedogródek

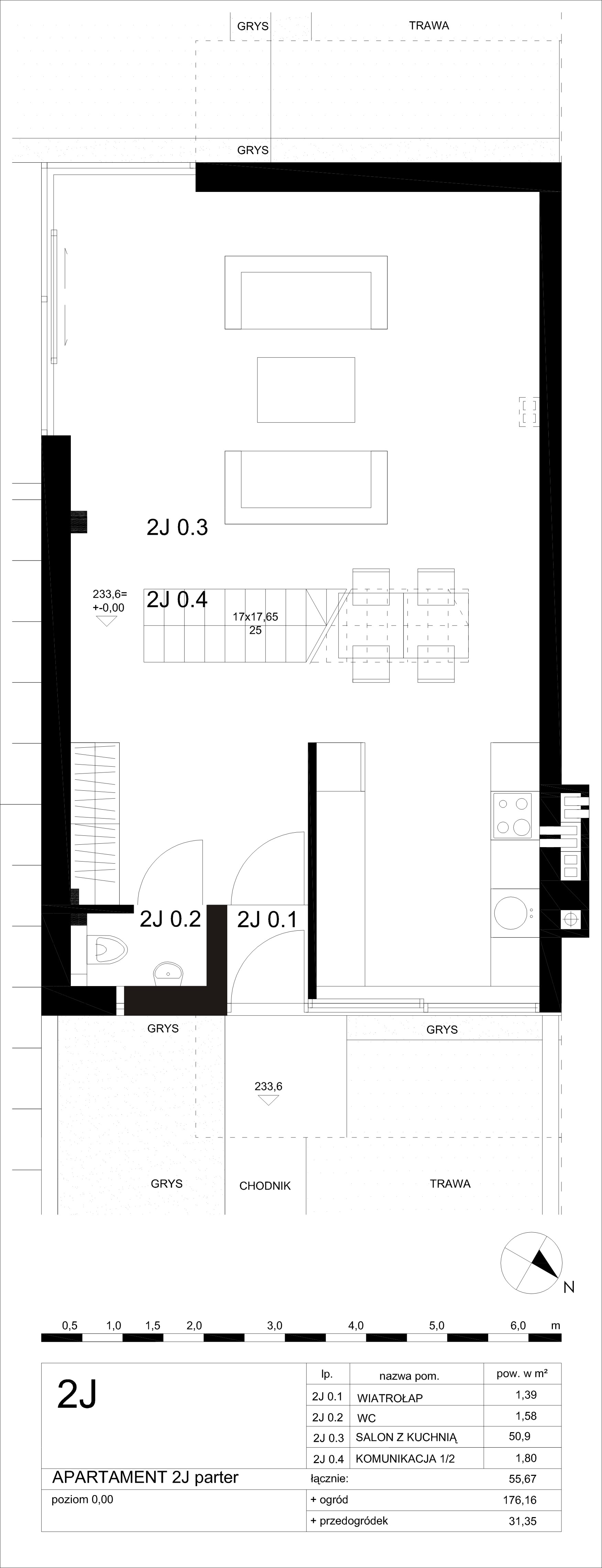
Parter

2K 0.1 - Przedsionek - 1.39 m2
2K 0.2 - WC - 1.58 m2
2K 0.3 - Salon z kuchnią - 49.16 m2
2K 0.4 - Komunikacja 1/2 - 1.80 m2

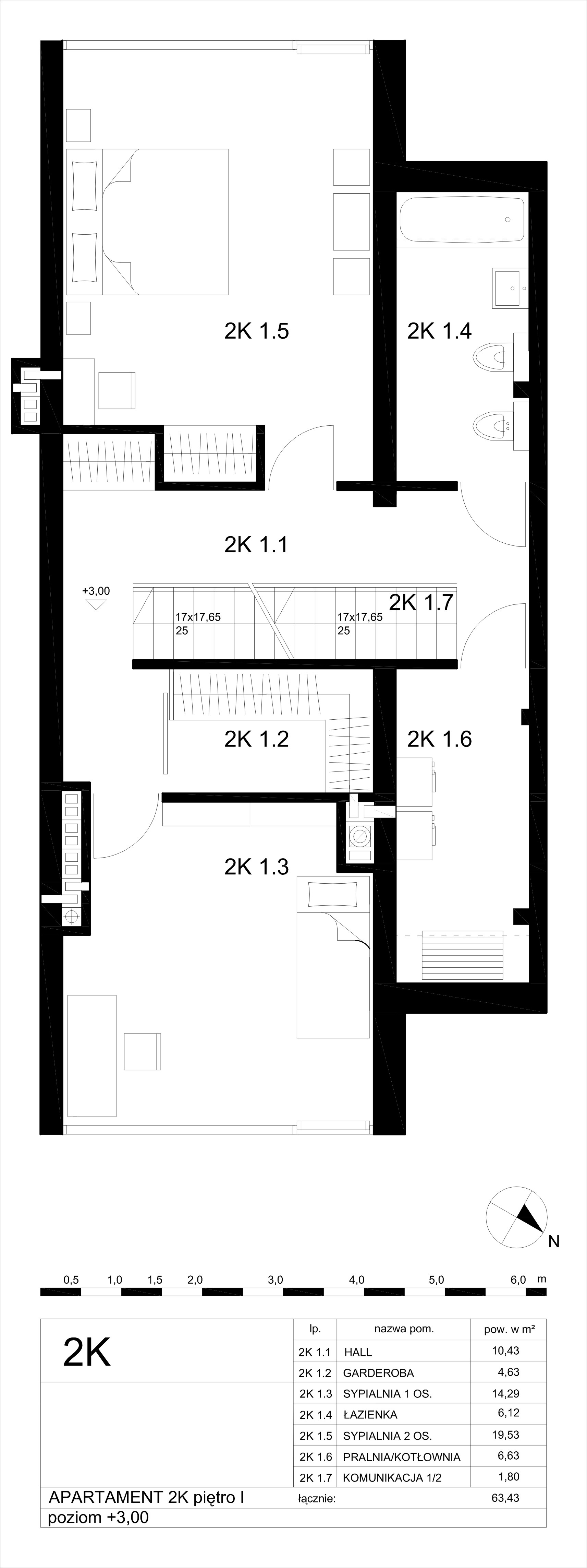
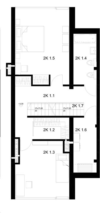
I Piętro
2K 1.1 - Hall - 10.43 m2
2K 1.2 - Garderoba - 4.63 m2
2K 1.3 - Sypialnia 1 Os. - 14.29 m2
2K 1.4 - Łazienka - 6.12 m2
2K 1.5 - Sypialnia 2 Os. 19.53 m2
2K 1.6 Pralnia/kotłownia - 6.63 m2
2K 1.7 - Komunikacja 1/2 - 1.8 m2

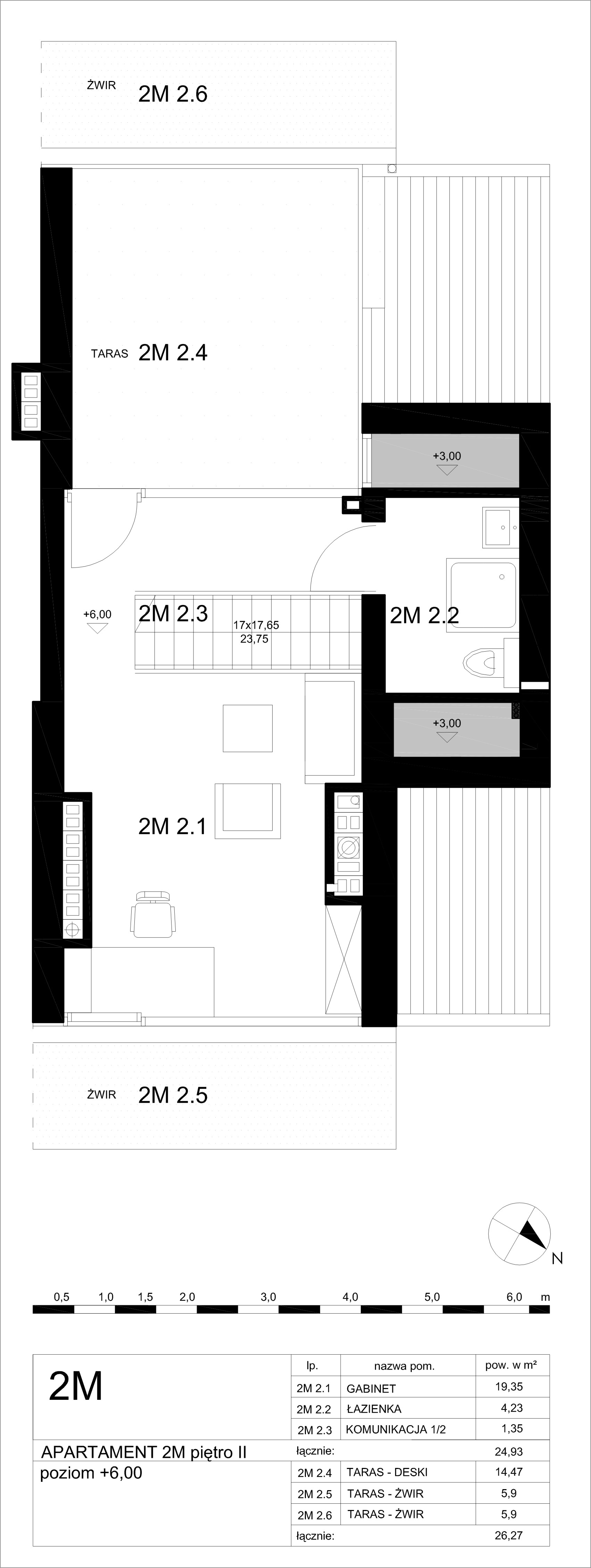
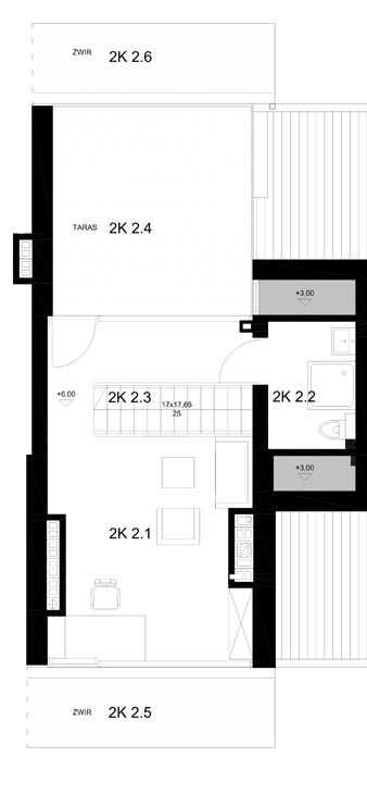
II Piętro
2K 2.1 - Gabinet - 20,44 m2
2K 2.2 - Łazienka - 4,23 m2
2K 2.3 - Komunikacja 1/2 - 1,35 m2
2K 2.4 - Taras - deski- 15,22 m2
2K 2.5 - Taras - żwir. 6,2 m2
2K 2.6 - Taras - żwir- 6,2 m2

Garaż podziemny
2L -1.1 - Pow. postojowa- 30.5 m2
2L -1.2 - Komunikacja - 27,72 m2

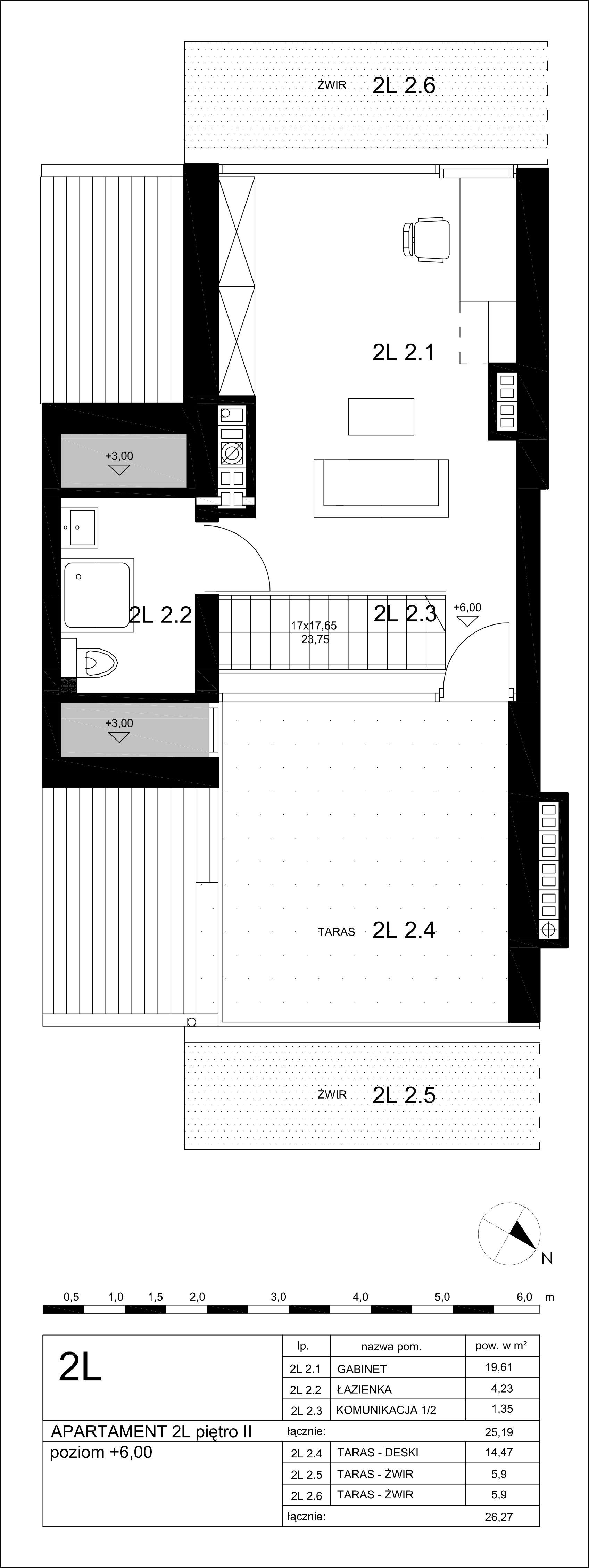
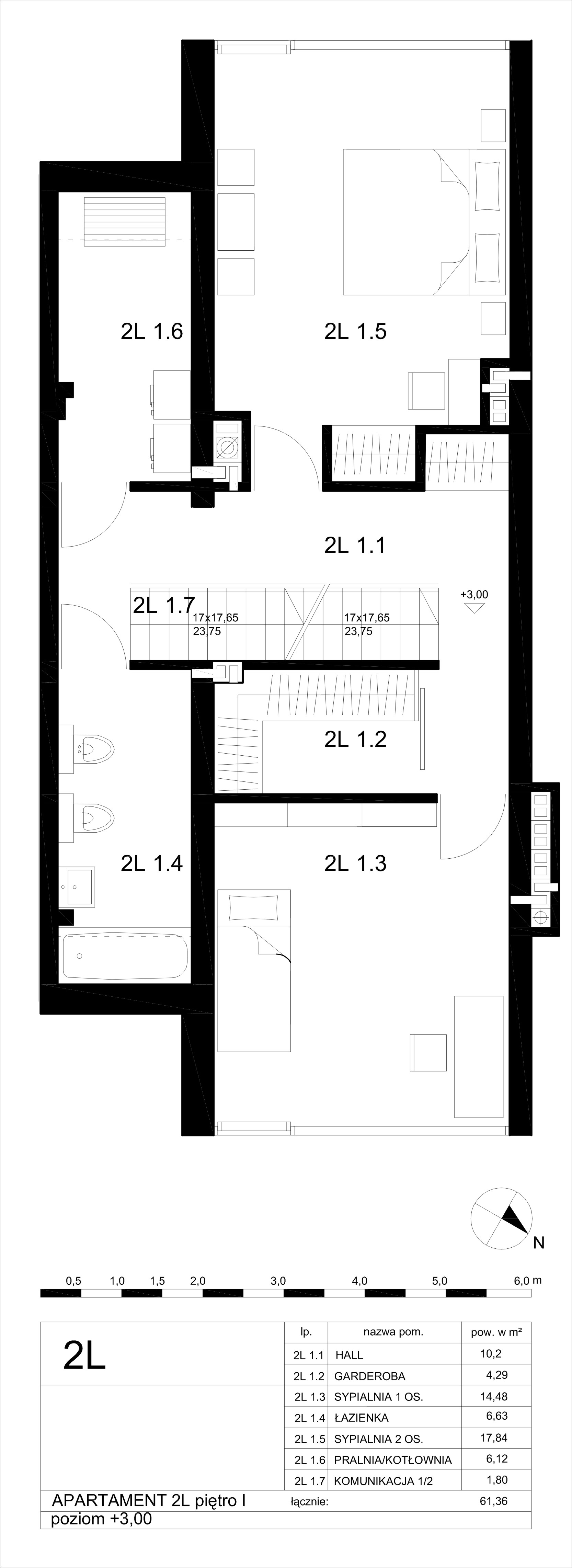
Apartament 2L

Na trzech poziomach użytkowych znajdują się:

4 pokoje, 2 łazienki, WC, kuchnia, garderoba, pralnia, taras, ogród, przedogródek.
Do apartamentu przynależą dwa miejsca postojowe w garażu podziemnym.
Zestawienie powierzchni:
139,20 m2 - powierzchnia użytkowa mieszkania
26,27 m2 - powierzchnia tarasu
56,27 m2 - garaż na 2 stanowiska
+ przynależna pow. komunikacyjna)
138,60 m2 - ogródek
29,60 m2 - przedogródek

Parter

2L 0.1 - Przedsionek - 1.39 m2
2L 0.2 - WC - 1.58 m2
2L 0.3 - Salon z kuchnią - 48.02
2L 0.4 - Komunikacja 1/2 - 1.8 m2

I Piętro
2L 1.1 - Hall - 10.2 m2
2L 1.2 - Garderoba - 4.29 m2
2L 1.3 - Sypialnia 1 Os. - 14.48 m2
2L 1.4 - Łazienka - 6.63 m2
2L 1.5 - Sypialnia 2 Os. 17.84 m2
2L 1.6 Pralnia/kotłownia - 6.12 m2
2L 1.7 - Komunikacja 1/2 - 1.8 m2

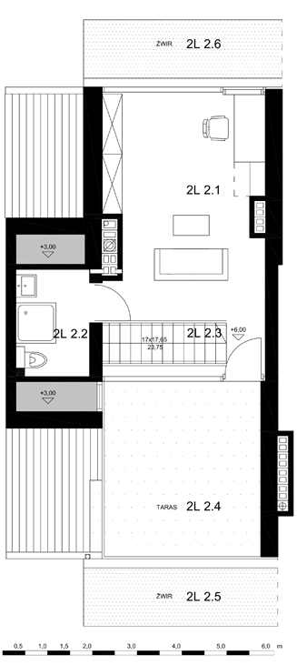
II Piętro
2L 2.1 - Gabinet - 19,61 m2
2L 2.2 - Łazienka - 4,23 m2
2L 2.3 - Komunikacja 1/2 - 1,35 m2
2L 2.4 - Taras - deski- 14,47 m2
2L 2.5 - Taras - żwir. 5,9 m2
2L 2.6 - Taras - żwir- 5,9 m2

Garaż podziemny
2L -1.1 - Pow. postojowa- 29.5 m2
2L -1.2 - Komunikacja - 26,77 m2

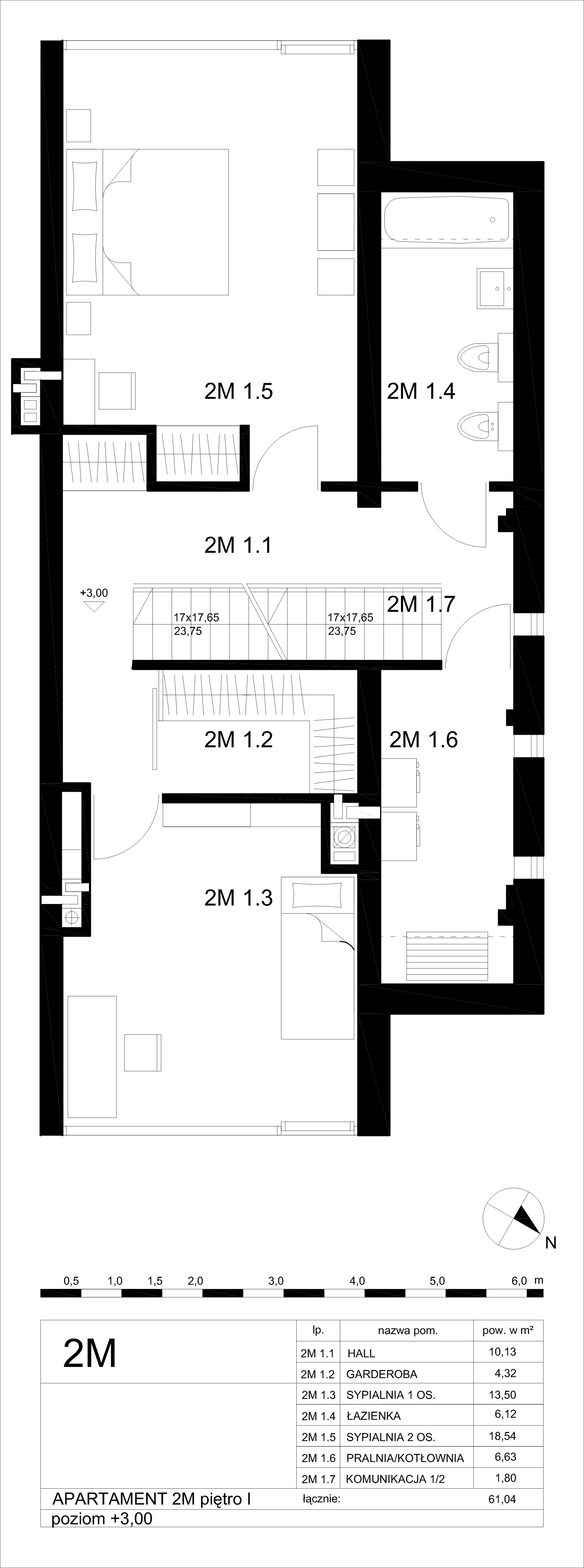
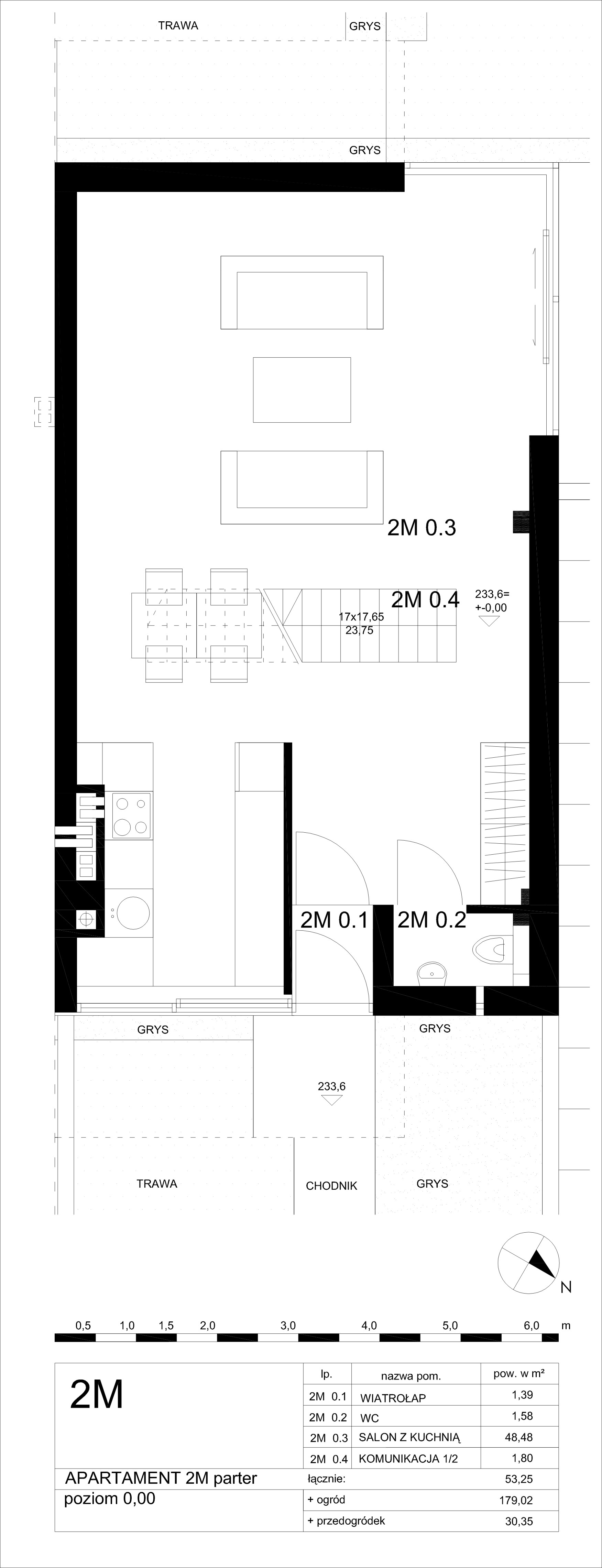
Apartament 2M

Na trzech poziomach użytkowych znajdują się:

4 pokoje, 2 łazienki, WC, kuchnia, garderoba, pralnia, taras, ogród, przedogródek.
Do apartamentu przynależą dwa miejsca postojowe w garażu podziemnym.
Zestawienie powierzchni:
139,20 m2 - powierzchnia użytkowa mieszkania
26,27 m2 - powierzchnia tarasu
56,27 m2 - garaż na 2 stanowiska
+pow. komunikacyjna
179,02 m2 - ogródek
31,60 m2 - przedogródek

Parter

2M 0.1 - Przedsionek - 1.39 m2
2M 0.2 - WC - 1.58m2
2M 0.3 - Salon z kuchnią - 48.48 m2
2M 0.4 - Komunikacja 1/2 - 1.8 m2

I Piętro
2M 1.1 - Hall - 10.13 m2
2M 1.2 - Garderoba - 4.32
2M 1.3 - Sypialnia 1 Os. - 13.50 m2
2M 1.4 - Łazienka - 6.12 m2
2M 1.5 - Sypialnia 2 Os. 18.54 m2
2M 1.6 Pralnia/kotłownia - 6.63 m2
2M 1.7 - Komunikacja 1/2 - 1.8 m2

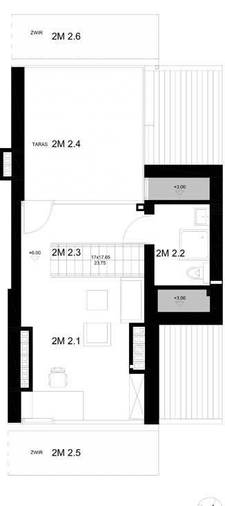
II Piętro
2M 2.1 - Gabinet - 19,35 m2
2M 2.2 - Łazienka - 4,23 m2
2M 2.3 - Komunikacja 1/2 - 1,35 m2
2M 2.4 - Taras - deski- 14,47 m2
2M 2.5 - Taras - żwir. 5,9 m2
2M 2.6 - Taras - żwir- 5,9 m2

Garaż podziemny
2L -1.1 - Pow. postojowa- 29.5 m2
2L -1.2 - Komunikacja - 26,77 m2

Sprzedaż

Spzedaż zakończona Informacje o kolejnych inwestycjach uzyskają Państwo na stronie kecoco.com

Budujemy od pokoleń

Zakopane - Dom turysty

Firma

Prowadzimy działalność deweloperską wykorzystując wieloletnie doświadczenie projektowe. Wykonujemy projekty architektoniczne dla budownictwa mieszkaniowego, użyteczności publicznej oraz inne. Prowadzimy postępowania administracyjne związane z nieruchomościami oraz doradztwo w zakresie inwestycji budowlanych.

Staramy się aby w każdym naszym nowym budynku forma, funkcja, konstrukcja i  materiał były spójną i estetycznie doskonałą całością. Ostatnia nasza realizacja La Maison  została uznana przez ZG SARP za jeden z najlepszych przykładów architektury jednorodzinnej powstałej w ostatnich latach w krajach grupy wyszehradzkiej  (V4 Family Houses – IV EDYCJA) Link